30/11/2023 mẫu

30/11/2023

Mẫu Nhà Biệt Thự Đơn Lập B1.1 Thanh Hà: Thiết Kế Sang Trọng và Hiện Đại

Mẫu Nhà Biệt Thự Đơn Lập B1.1 Thanh Hà: Thiết Kế Sang Trọng và Hiện Đại

Nếu bạn đang tìm kiếm không gian sống lý tưởng kết hợp giữa sự sang trọng, tiện ích và tiềm năng đầu tư, mẫu nhà biệt thự đơn lập B1.1 tại khu đô thị Thanh Hà sẽ là sự lựa chọn hoàn hảo cho bạn và gia đình.

Hãy liên hệ ngay với chúng tôi để khám phá thêm về những ưu điểm nổi bật của mô hình nhà đẳng cấp này và để được tư vấn chi tiết về quy trình mua nhà tại Thanh Hà. Chúng tôi luôn sẵn lòng hỗ trợ bạn trong quá trình tìm kiếm ngôi nhà hoàn hảo!

Tận Hưởng Sự Sang Trọng và Tiện Nghi với Mẫu Nhà Biệt Thự Đơn B1.1 Lập Tại Khu Đô Thị Thanh Hà.

Những mẫu nhà biệt thự đơn lập B1.1 tại khu đô thị Thanh Hà không chỉ là nơi ẩn mình trong sự yên bình của khu vườn xanh mát mà còn thể hiện sự hoàn hảo trong thiết kế kiến trúc và tiện ích hiện đại. Với sự kết hợp hoàn hảo giữa không gian sống thoải mái và phong cách đẳng cấp, những mẫu nhà biệt thự này đang thu hút sự quan tâm của những người tìm kiếm không gian sống lý tưởng tại khu vực Thanh Hà.

Thiết Kế Độc Đáo và Tiện Nghi

Những mẫu nhà biệt thự đơn lập B1.1 được thiết kế với sự chú trọng đến từng chi tiết, từ kiến trúc độc đáo đến các tiện ích hiện đại. Với không gian rộng rãi, sân vườn xanh mướt , những căn biệt thự này tạo ra môi trường sống lý tưởng cho gia đình bạn.

Xem thêm : Hồ sơ thiết kế bản vẽ thi công mẫu nhà biệt thự song lập B1.1 Thanh Hà.

Đẳng Cấp và Sang Trọng- Tiện Ích Đẳng Cấp.

Với thiết kế hiện đại, mỗi căn biệt thự B1.1 mang đậm dấu ấn của sự sang trọng và đẳng cấp. Sử dụng các vật liệu cao cấp và thiết kế nội thất tinh tế, không gian sống trở nên lịch lãm và tiện nghi, đem lại cảm giác thoải mái và ấm cúng cho cả gia đình.

Ngoài kiến trúc và thiết kế nội thất tinh tế, những mẫu nhà biệt thự đơn lập tại khu đô thị Thanh Hà còn sở hữu các tiện ích đẳng cấp như hồ điều hoà, khu vui chơi trẻ em, phòng tập gym, và khu vực xanh mát cho cả gia đình tận hưởng cuộc sống tiện nghi và thư giãn.

Xem thêm : Quy hoạch khu đô thị Thanh Hà

Xem thêm : Tin tức khu đô thị Thanh Hà mới nhất

Những mẫu nhà biệt thự đơn lập Thanh Hà không chỉ đáp ứng nhu cầu về không gian sống lý tưởng mà còn tạo ra một cộng đồng cư dân văn minh và hiện đại. Với sự kết hợp hoàn hảo giữa thiết kế đẳng cấp và tiện ích hiện đại, đây là nơi lý tưởng để bạn xây dựng tổ ấm viên mãn cho gia đình.

Khi tìm kiếm không gian sống lý tưởng kết hợp giữa sự thanh lịch và tiện ích, mẫu nhà biệt thự đơn lập tại khu đô thị Thanh Hà là lựa chọn không thể bỏ qua. Với sự thiết kế tinh tế và không gian rộng rãi, những căn biệt thự đơn lập Thanh Hà không chỉ mang đến cho gia đình bạn một nơi ở hoàn hảo mà còn tạo nên cảm giác ấm áp, thân thuộc nhưng không kém phần sang trọng.

Vị Trí Thuận Lợi, Giao Thông Kết Nối.

Với vị trí đắc địa tại trung tâm quận Hà Đông, khu đô thị Thanh Hà dễ dàng kết nối với các khu vực trung tâm của thành phố. Hệ thống giao thông thông thoáng giúp cư dân di chuyển dễ dàng đến trung tâm thành phố và các điểm tiện ích khác trong và ngoài khu vực.

Đầu Tư Sinh Lời, Sống Tận Hưởng.

Với tiềm năng phát triển không ngừng và giá trị tăng cao của bất động sản tại khu vực này, việc sở hữu một mẫu nhà biệt thự đơn lập tại Thanh Hà không chỉ là nơi an cư lý tưởng mà còn là cơ hội đầu tư sinh lời hấp dẫn.

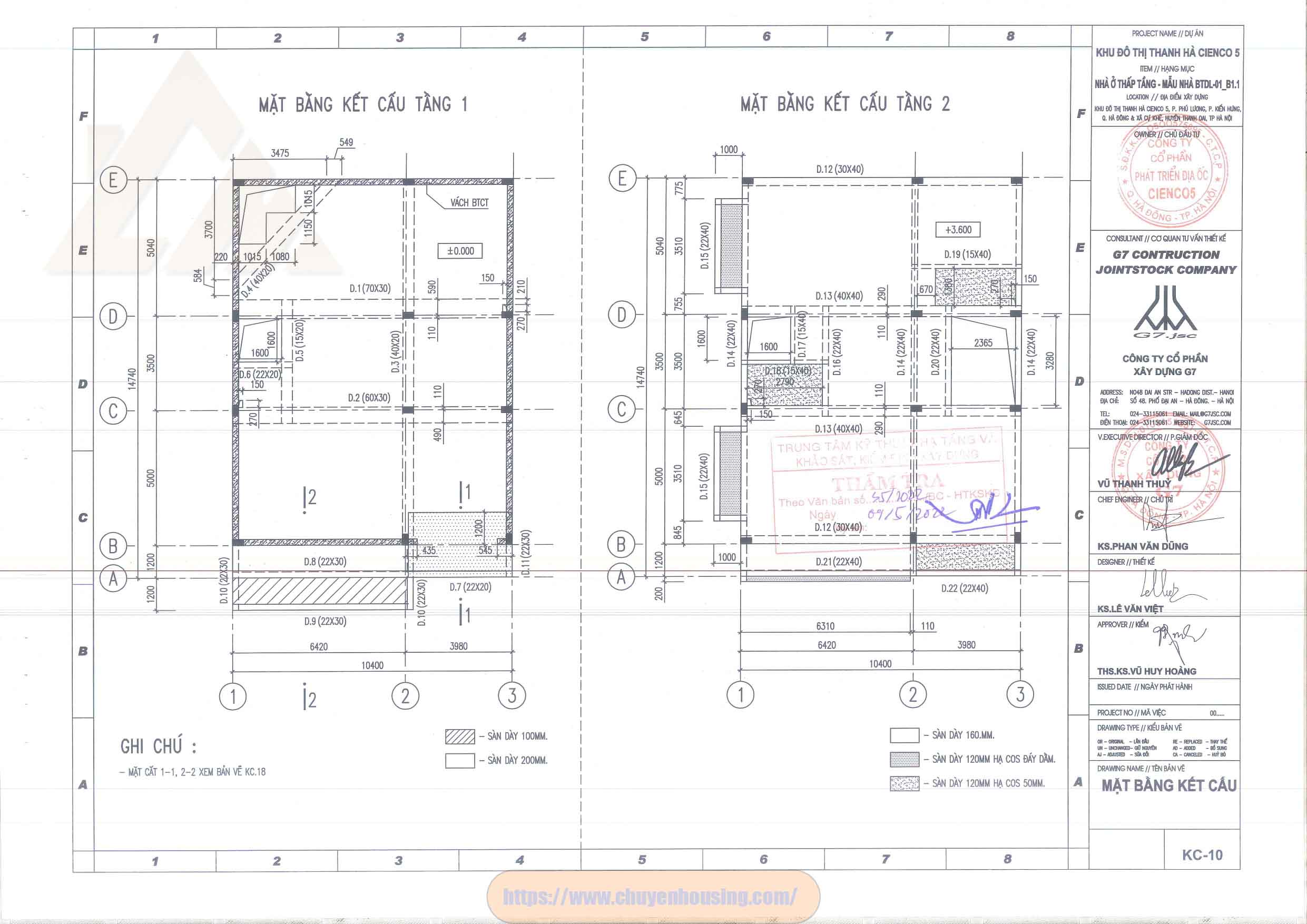
Hồ sơ thiết kế bản vẽ thi công nhà ở thấp tầng – Mẫu nhà biệt thự đơn lập B1.1 Thanh Hà.

mẫu
mẫu nhà biệt thự đơn lập b1.1 thanh hà
mẫu nhà
mẫu nhà thanh hà
biệt thự đơn lập
khu đô thị thanh hà
thanh hà
biệt thự đơn lập
mẫu nhà thanh hà
mẫu biệt thự
nhà biệt thự
thanh hà mường thanh
mẫu nhà khu đô thị thanh hà
mẫu biệt thự
mẫu
nhà
biệt
thự
đơn
lập
thanh
hà
khu
đô
thị
thanh
hà
khu đô thị
thanh hà
cienco 5
dự án
mẫu nhà
b1.1
xây dựng
b1.1 thanh hà
mẫu nhà b1.1
b1.1 tại thanh hà
mẫu
nhà
khu
đô thị
xây
xây dựng b1.1
khu đô thị thanh hà
mẫu nhà thanh hà
mẫu nhà b1.1
mẫu nhà biệt thự thanh hà
thanh hà
biệt thự
biệt thự thanh hà
biệt
thự
thanh hà cienco 5
thanh hà mường thanh
xây dựng b1.1
thanh
ha
cienco 5
xay dựng
khu thanh hà
xây dựng b1.1
hiện đại
sang trọng
thiết kế
thiết kế mẫu nhà
mẫu nhà sang trọng
thiết kế mẫu nhà
kiến trúc mẫu nhà
mẫu biệt thự

biệt thự liền kề thanh hà

Tin liên quan

All in one